Щелевой диффузор с КСД для гипсокартона на 6 прямых выходов (без фланцев в комплекте)
Щелевой вентиляционный диффузор Provent VPNDG-F 1500/90×6 предназначена для установки в потолки из гипсокартона и может применяться в качестве приточного и вытяжного диффузора в системе вентиляции на основе гибких вентканалов Provent диаметром 90 мм. Возможна установка как в однослойные гипсокартонные потолки, так и в двухслойные, толщиной 12,5 мм. В корпус интегрирована КСД (камера статического давления) для снижения скорости воздушного потока и уменьшения шума. Прямоугольная щель диффузора длиной 1500 мм и шириной 25 мм, два фланца для подключения гибких воздуховодов 90 мм. На внешнюю сторону профиля щели, которая соприкасается с шпатлевкой, нанесена небольшая шероховатость, для обеспечения лучшей адгезии с отделочными материалами. Помимо монтажа в потолок, профиль так же подходит для монтажа в стену из гипсокартона.
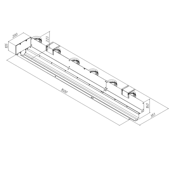
- Размеры щелевого диффузора: 1500 x 25 мм (высота диффузора 55 мм)
- Размеры КСД (адаптер): 1500 х 200 х 105 мм
- Выходы воздуховодов: 6 х 90 мм
- Размеры (с присоединительными фланцами и диффузором): 1500 х 200 х 221 мм
- Минимальная высота занижения потолка: 160 мм
Конструкция КСД изготовлена из оцинкованной стали, сам диффузор изготовлен из алюминиевого профиля и окрашен в черный цвет (под заказ возможна окраска по каталогу RAL). Благодаря своей конструкции, щелевой вентиляционный диффузор Provent VPNDG-F 1500/90×6 обеспечивает минимальное падение давления и низкие показатели шума.
Монтаж
Диффузор устанавливается на монтажные кронштейны, которые входят в комплект. Кронштейны имеют возможность регулировать высоту установки КСД, позволяя нивелировать неровность потолка. Гибкие воздуховоды Provent RP 90 фиксируются специальными замками Provent LK 90 на присоединительных фланцах (фланцы в комплект не входят).
Таблица значений сопротивления диффузора
| Расход, м3/ч | Потери давления, Па |
|---|---|
| 60 | 3,82 |
| 90 | 6,73 |
| 120 | 10,43 |
| 150 | 12,56 |
| 180 | 15,82 |
Упаковочная информация
Диффузор упакован в индивидуальную коробку из плотного бурого гофрокартона.
- Размеры коробки: 1630 х 215 х 175 мм
- Масса брутто: 8,35 кг





